亚洲成av不卡无码无码不卡-欧美性做爰片免费视频看-天天操夜夜操-最新 国产 精品 精品 视频-欧洲亚洲色视频综合在线

橫琴口岸過渡期通關設施項目出境報關報檢樓三層寫字間招租公告
發表時間:2015-01-27
分享到:

我司擬將珠海市橫琴新區景順路橫琴口岸過渡期通關設施出境報關報檢樓三樓寫字間出租。其中將要進行出租的寫字間共有10間,各寫字間面積詳見附件(二)。寫字間交付情況為簡裝修交付。

我司現擬對寫字間的三年租賃權進行公開競價,寫字間只允許經營報關報檢類的相關行業,并須將經營資質報送珠海大橫琴口岸建設開發有限公司同意及備案。承租權采用公開競標方式,寫字間租金出價最高者將獲得該寫字間承租權,但價高不是唯一考慮的因素。

一、承租條件

承租鋪面者必須具備下列條件:

1、          承租人必須能獨立承擔民事責任,承租人須為企業,并須提供以下文件:

1)          企業法人身份證明;

2)          法人授權委托書及授權人身份證明;

3)          企業法人營業執照復印件并具備報關報檢類業務經營資質;

2、寫字間位于橫琴口岸過渡期設施出境報關報檢樓內三樓,承租人只允許經營報關報檢類的相關行業,并須將經營資質報送珠海大橫琴口岸建設開發有限公司同意及備案。

3、經營使用期間如需轉租他人,該轉租人亦須經營報關報檢類的行業,另須以書面形式向珠海大橫琴口岸建設開發有限公司提出申請并獲得同意,并辦理相關登記手續,轉租不改變承租人與珠海大橫琴口岸建設開發有限公司的租賃合同關系,但雙方租賃合同另有約定不能轉租的除外。

4、承租人獲得承租權后,應于收到承租通知之日起10日內與珠海大橫琴口岸建設開發有限公司簽訂寫字間租用協議,否則視為放棄承租權。放棄承租權的,珠海大橫琴口岸建設開發有限公司將對該寫字間重新發起競標,重新選擇承租人。

二、租賃期限

租賃期為36個月 ,自我司與最終確定的承租人簽訂租賃合同之日開始計算,具體租賃期限以最終簽訂的合同為準。

三、招租方式

1、  承租人資格預審。

由承租人根據“第一條承租條件”的要求報送相關審核材料,經珠海大橫琴口岸建設開發有限公司審查符合承租人條件的,可以參與寫字間租賃權競標。

2、          寫字間租賃權競標。

橫琴口岸過渡期通關設施出境報關報檢樓寫字間租賃權采用公開競標的形式確定,寫字間租金出價最高者將獲得該寫字間承租權,但價高不是唯一考慮的因素。

每間寫字間租金最低起拍價以《橫琴口岸過渡期通關設施報關公司寫字間競價邀請函》公布的價格為準。寫字間競標租金僅為寫字間基本租金,物業管理費及水電費等其他相關費用不含在內,須由承租人自行承擔,其中,水電費以承租人實際租賃寫字間建筑面積占出境報關報檢樓建筑面積的比例分攤實際產生的費用,并由承租人于每月

  號前向墊付單位支付上月的水電費。

四、租金支付方式

合同簽訂之日,承租人須向珠海大橫琴口岸建設開發有限公司交納2個月寫字間租金,同時,每間寫字間須交納一個月租金為履約保證金。從第3個月起承租人按交納租金,交納日期為每個月10日前(詳細要求以最終簽訂的合同為準)。

寫字間以簡裝修交付,其中包括:墻身、地板、天花及電路等。如需更寫字間內部結構須向珠海大橫琴口岸建設開發有限公司提交書面申請及裝修方案,經書面確認允許后方可實施。合同期滿且不再續租,如無違約行為,全額無息退還履約保證金(詳細要求以最終簽訂的合同為準)。

五、競價報名辦法

承租人競價報名辦法:承租人于寫字間競標日前三天將承租人的競價書(須密封并加蓋公司公章,具體要求以《橫琴口岸過渡期通關設施報關公司寫字間競價邀請函》公布的要求為準)提交到珠海大橫琴口岸建設開發有限公司1號樓一層1101室曹小姐處遞交。

承租人須于競標日2015年2月10日下午2點到達競標地點:珠海大橫琴口岸建設開發有限公司二樓第二會議室參與寫字間競投,未在當天規定時間到達的意向承租人將視為放棄競標。

六、咨詢電話

聯系人:曹小姐    聯系電話:0756-6313930

七、相關附件

附件一:

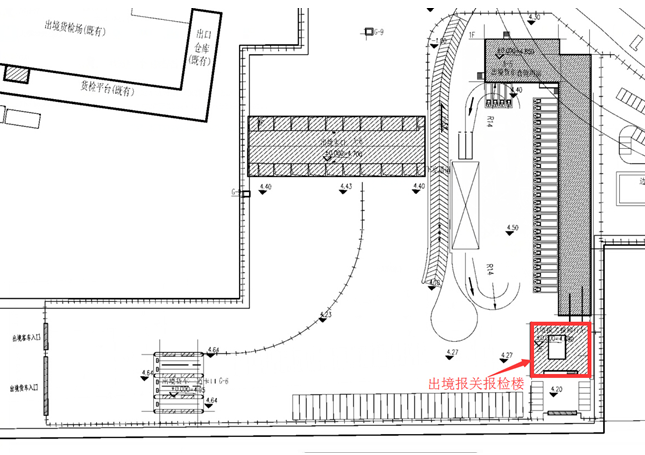
《橫琴口岸過渡期設施出境報關報檢樓布局圖》


 


附件二:

《橫琴口岸過渡期通關設施項目出境報關報檢樓三層寫字間平面圖》

附件:橫琴口岸過渡期通關設施項目出境報關報檢樓三層寫字間招租公告

         橫琴口岸過渡期通關設施項目出境報關報檢樓三層寫字間租賃合同

         橫琴口岸過渡期通關設施項目出境報關報檢樓三層寫字間競價邀請函

         橫琴口岸過渡期設施出境報關報檢樓布局圖

         橫琴口岸過渡期通關設施項目出境報關報檢樓三層寫字間平面圖


珠海大橫琴口岸建設開發有限公司

                            2015年1月27日