亚洲成av不卡无码无码不卡-欧美性做爰片免费视频看-天天操夜夜操-最新 国产 精品 精品 视频-欧洲亚洲色视频综合在线

橫琴口岸過渡期通關設施出境報關報檢樓三層寫字間租賃競價邀請函
發表時間:2015-01-27
分享到:

橫琴口岸過渡期通關設施

出境報關報檢樓三層寫字間租賃競價邀請函

 

   為感謝貴司對橫琴口岸長期以來的信任和支持,茲定于2015210日(星期二)下午200分在我司__第二__會議室進行橫琴口岸過渡期通關設施出境報關報檢樓三層寫字間租賃競價,熱忱期待您的參與和競價。具體內容如下:

一、項目名稱:橫琴口岸過渡期通關設施出境報關報檢樓三層寫字間租賃競價

二、項目地點:大橫琴口岸建設開發有限公司___第二___會議室

三、項目內容:本次招租的橫琴口岸過渡期設施內寫字間位于出境報關報檢樓三樓,共有10間寫字間,詳見附件(三)。寫字間交付情況為簡裝修交付,其中包括:墻身、地板、天花及電路等。我司現擬對寫字間的三年租賃權進行公開競價,寫字間只允許經營報關報檢類的相關行業,并須將經營資質報送珠海大橫琴口岸建設開發有限公司同意及備案。

四、競價文件組成

1.報價書要求及數量:中文,正本一份,副本二份,正本副本均須加蓋公章;報價書格式詳見附件(一)。全部競價文件遞出后不予退還。

2.競價企業相關的資格證書:包括有效的“法人營業執照”副本內頁(提供復印件并加蓋公章,內容應含企業法人年檢情況記錄和經營范圍并加蓋公章)、稅務登記證(提供復印件并加蓋公章)、組織機構代碼證(其中增值稅一般納稅人資格證書等資料根據具體競價項目內容提供,提供復印件并加蓋公章)以及有效的報關業務許可證或相關文件(提供復印件并加蓋公章)等。

3.競價企業簡介。

4.法人授權代表身份證(復印件并加蓋公章)和法人授權委托書。

5.以上證明文件均需加蓋單位公章,全部競價文件需用信封裝好密封并在封口處加蓋公章。以上資料遞交后不予退還。

五、競價書的遞交

請于競標日前三天將承租人的競價書(須密封并加蓋公司公章)提交到珠海大橫琴口岸建設開發有限公司1號樓一層1101室曹小姐處遞交。

承租人須于競標日2015210日下午2點到達競標地點:珠海大橫琴口岸建設開發有限公司二樓第二會議室參與寫字間競投,未在當天規定時間到達的意向承租人將視為放棄競標。

如競價方有任何疑問,可與本項目負責人及時聯系、咨詢:

聯系人:曹晶                

聯系電話:0756-6313930;18688162188

傳真:0756-6313900                 

地址:珠海市橫琴新區景順路(橫琴新區規劃建設展示廳旁)

六、競價說明:

1.由于資源和場所有限,本次競價項目均由公司相關部門人員組成競價評審小組,進行公平、公正的評審;不設競價方現場解答競價的流程。

2.為公平競爭,我們同時以同樣條件邀請其他公司對我方做出報價。

3.寫字間用途僅限于報關報檢類的合法經營。

4.競價價格只含基本租金,不含水電及物業管理等其他相關費用。

5.我方只考慮與所附報價要求相符的報價書,詳見附件(一)。

6.我們有權采納報價的全部或一部分。若貴方報價最終為我方所接受并簽署合同,貴方將承擔合同項下乙方所承擔的所有責任和義務。本次進行競標的寫字間競拍起拍價為350/平方米(建筑面積)/月起,若全部參與競標的單位的報價未能高于此價,則此標流拍。

7.競價書資料應完整、清晰,對由于競價人設計遺漏或設計錯誤而造成的需要補充投資的費用,由競價人自行承擔。    

8.價格是我們選擇最終合作單位考慮的重要因素,但并不是唯一因素。

9.本函件只是邀請報價,我司無義務對全部遞交的報價書發出承諾。我司有權根據實際需要與各報價方進行價格復議,被最終選擇的競價方將根據合同法與我司訂立正式合同。

10.本邀請函的解釋權在珠海大橫琴口岸建設開發有限公司。

11.本邀請函以傳真件或電子郵件的形式發出,收到后請及時書面傳真確認給我公司。

順頌商祺!

 

 

珠海大橫琴口岸建設開發有限公司

2015年127

 


附件(一):

 

橫琴口岸過渡期通關設施

出境報關報檢樓三層寫字間租賃競價報價表

 

競標寫字間:

寫字間位于出境報關報檢樓三樓,共有10間寫字間出租(詳見附件(二))。

此次競投的寫字間為第        號。

競標單位:

 

聯系人:

 

聯系方式:

 

競標價格:

(格式:X/平方米(建筑面積)/月)

 

競標時間:

2015210

 

附件(二):

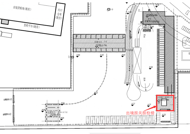
橫琴口岸過渡期設施出境報關報檢樓布局圖


附件(三):

橫琴口岸過渡期通關設施項目出境報關報檢樓三層寫字間平面圖:


附件(四):

橫琴口岸過渡期通關設施出境報關報檢樓3樓招租寫字間建筑面積表

 

橫琴口岸過渡期通關設施出境報關報檢樓

三樓招租寫字間建筑面積表

 

名稱

序號

房間號

建筑面積(㎡)

橫琴口岸過渡期通關設施

出境報關報檢樓

三樓招租寫字間

1

A301

12.54

2

A302

12.14

3

A303

12.14

4

A304

12.14

5

A305

12.88

6

A308

10.54

7

A309

10.29

8

A310

10.29

9

A311

10.63

10

A312

59.19

 


附件(五):

橫琴口岸過渡期通關設施項目出境報關報檢樓三層寫字間租賃合同:

合同編號:

 

 

 

 

 

橫琴口岸過渡期通關設施

 

出境報關報檢樓三層寫字間

租賃合同

 

 

 

 

 

 

甲方(出租方):珠海大橫琴口岸建設開發有限公司

乙方(承租方): _____________________________


橫琴口岸過渡期通關設施

出境報關報檢樓三層寫字間租賃合同

                                                                                            

甲方(出租方:珠海大橫琴口岸建設開發有限公司

法定代表人/負責人: 朱忠隆

地址:珠海市橫琴新區景順路(橫琴新區規劃展示廳旁)

 

乙方(承租方):

法定代表人/負責人:

地址:

 

根據《中華人民共和國合同法》以及國家有關房屋租賃法規的規定,為保護租賃雙方當事人的合法權益,明確相關的權利義務關系,甲乙雙方經協商一致,簽訂本合同。

第一條 房屋位置及面積概況

甲方同意將位于珠海市橫琴新區景順路橫琴口岸過渡期通關設施出境報關報檢樓的  第三    號寫字間(建筑面積    ㎡,以下簡稱“租賃房產”),出租給乙方有償使用。乙方承租的寫字間只允許經營報關報檢類的相關行業,并須將經營資質報送甲方同意及備案。租賃期間乙方不得變更經營范圍及方式,否則視為乙方違約,甲方有權提前解除合同,收回租賃房產,同時不予退還合同履約保證金并追究乙方的違約責任。

租賃房產按現狀租賃,乙方已于簽約前實地查看且沒有任何異議。

第二條  租賃期限

1、租賃期限為 3 ,自甲方與乙方簽訂合同之日開始計算。

2、如乙方有意在合同租賃期滿后,續租本合同項下房產,須在本合同租賃期屆滿前提前90日書面向甲方提出續租申請,在同等條件下,乙方享有優先權;乙方未提前90日書面提出申請并簽訂續租合同的,視為乙方主動放棄有優先權。

第三條  基本租金繳納方式

 1、除合同另有約定外,乙方于每月10日(遇法定節假日順延)前將當月基本租金足額匯入甲方指定賬號內(開戶單位:珠海大橫琴口岸建設開發有限公司;開戶銀行:中國銀行珠海橫琴分行; 賬號:7354 5774 4131)。

本合同每月基本租金標準為人民幣大寫:      /平方米/月(小寫:       /平方米/月),基本租金按租賃房產建筑面積計算,乙方每月需向甲方支付的基本租金為:人民幣      元(小寫:       元)。

2、相關費用:乙方租賃期間產生的除基本租金以外的一切費用(如:物業管理費、電視費、電話費、網絡費、垃圾處理費等),由乙方按相關單位要求的標準、時間、方式直接向有關單位繳納,水電費以乙方實際租賃寫字間建筑面積占出境報關報檢樓建筑面積的比例分攤實際產生的費用,乙方應于每月10號前向墊付單位(即甲方)支付上月的水電費。若乙方未按時繳付,每逾期一日,乙方應向甲方支付欠付水電費用金額3%的違約金;水電費逾期30天(含當天)或累計逾期30天(含當天)或累計欠付水電費金額累計達到1000元(含本數),乙方除支付違約金外,甲方還有權協助有關單位采取停水、停電等措施并/或提前解除本合同,收回租賃房產,并不退還履約保證金,對于乙方在租賃期間所作的裝修,甲方不作任何補償,同時,乙方應自行承擔一切責任及損失。

3、履約保證金:為保證本合同全面履行,乙方須于合同簽訂之日起10日內向甲方一次性交納租賃房產首二個月的基本租金,同時,須另交納一個月基本租金人民幣_______元整(小寫:       元)作為履約保證金,從第3月起乙方按月交納租金,交納日期為每個月10日前。合同期滿或解除后,如乙方按時繳清本條所述各項費用且無違約行為,甲方在于房屋及水電、通訊等設施清點驗收無誤并接收租賃房產之日起7個工作日內憑相關發票或收據將履約保證金一次性無息全額退還乙方。

第四條  房屋租賃期間房屋的修繕及設備的維修

甲乙雙方確認按“誰使用誰維護”的原則,乙方對租賃房產的墻面、水、電等設施及其他設備須定期維護保養,保持良好、正常的使用狀態,對承租期間發現的缺陷進行必要的維修,維修費用由乙方承擔。

第五條  甲方與乙方主體變更的處理

    1、甲方在出讓租賃房產所有權時,應提前30天書面通知乙方。

  2、租賃期間,甲方如將該房屋所有權轉移給第三方(同等條件下,乙方放棄優先購買權的),在不變更本合同內容的前提下,不必征得乙方同意,但應告知乙方所有權轉移情況,并由所有權取得方向乙方出具確認書,同意無條件承接本合同約定應由甲方承擔的義務。所有權轉移后,所有權取得方即成為本合同的當然出租方,享有原甲方享有的權利和承擔原甲方的義務。

3、乙方在租賃期內,不得無故退租或未經甲方的書面同意自行將租賃房產分租或轉租給第三方,否則,甲方有權提前解除合同,并沒收履約保證金及追究乙方的違約責任。

第六條  雙方責任

    (一)甲方責任

    1、甲方于簽訂合同之日起10個日歷天內向乙方移交租賃房產,未按合同規定時間提供租賃房產時,租賃期限不順延,乙方可將基本租金等費用順延至甲方移交鑰匙之日起繳納。

2、合同期滿或解除后,如乙方無違約行為且及時結清租金等第三條約定的全部費用,甲方在對租賃房產及水電、通訊等設施清點驗收無誤并接收租賃房產之日起7個工作日內憑相關發票或收據將履約保證金一次性無息退還乙方。

3、租賃期間甲方有權對乙方的經營活動進行監督,但不干涉乙方在合同約定經營范圍內的合法經營活動。

4、租賃房產交付情況為簡裝修交付,其中包括:墻身、地板、天花及電路等。

(二)乙方責任

1、乙方必須能獨立承擔民事責任,乙方須為企業,并須提供以下文件:

1) 企業法人身份證明;

2) 法人授權委托書及授權人身份證明;

3) 企業經營執照復印件并具備報關報檢類業務經營資質;

2、按時交納基本租金。逾期繳納的,根據所欠金額,按每日1 %的標準向甲方支付滯納金。乙方連續超過兩個月不繳納或欠費金額總計達到兩個月的基本租金或累計3個月未按時足額繳納基本租金,甲方有權提前解除合同,收回租賃房產,并不退還履約保證金并追究乙方的違約責任;對于乙方在租賃期間所作的裝修,甲方不作任何補償。

3、如因乙方原因未及時繳納水電費、物業管理費等相關費用造成甲方的損失,由乙方全權負責。

4、未經甲方書面同意,乙方不得私自在租賃房產外墻進行裝飾、更改房屋結構、加建、搭建任何建筑,否則由此而造成的法律責任和經濟損失由乙方承擔,甲方有權提前解除合同,并不退還履約保證金且有權追究乙方的違約責任。

5、乙方應服從當地有關管理部門的管理,自覺遵守有關法律、法規,不得進行違法、違規活動。否則,甲方有權提前解除合同,收回出租房屋,并不退還履約保證金。對于乙方在租賃期間所作的裝修,甲方不作任何補償;乙方承擔因此產生的一切法律責任。

6、乙方不得在租賃房產內非法存放易燃、易爆、放射性等有污染或有毒等危險物品,承擔對租賃房產的安全、防火、衛生(門前三包)責任,并定期檢查和排除一切消防安全隱患,因乙方原因引起火災或其他事故而導致的所有損失均由乙方承擔。甲方有權提前解除合同,收回出租房屋,并不退還履約保證金。給甲方造成損失的,乙方應當提供賠償。乙方負責人為租賃房產的消防責任人。

    7、愛護和正常使用房屋及房屋內一切電器等設備。因乙方使用造成房屋、設備等損壞的,乙方必須負責修復或賠償。如乙方需要在租賃房產內安裝超過現有水電負荷容量的設備、設施,必須得到甲方書面同意,費用由乙方自理。未經甲方書面同意和未辦理相關手續而產生的事故或處罰,由乙方承擔全部責任。同時,甲方有權提前解除合同,收回出租房屋,并不退還履約保證金及追究乙方的違約責任。

8、本合同期滿(乙方不再續租)或提前解除時,入墻家俬、隔斷、天花、地面等固定裝飾無償移交給甲方;乙方自行添置的可移動的設備等物品屬乙方所有。如乙方在租賃期滿時不再續約或合同提前解除,乙方應在租賃期屆滿之日起5日內或合同解除之日起5日內搬離承租房屋并移交甲方,逾期不搬出的,視為乙方放棄物品所有權,歸甲方所有,甲方有權對其進行處置;乙方應保持屋內電器等設備完好并按交付使用時的清潔狀態和使用狀態歸還給甲方,如有損壞,甲方有權按損壞程度要求乙方計價賠償。

9、未經甲方書面同意,乙方不得將租賃房產分租或轉租他人或改變租賃用途,如乙方違反,甲方對乙方的前述行為不予承認,有權提前解除合同,不予退還乙方所交納的履約保證金并追究其違約責任。

10、在租賃期內,如乙方確因特殊情況需要提前退租,必須提前30日書面通知甲方并經甲方同意且辦理提前解除合同和退場清點交接手續,否則視乙方違約,甲方有權解除本合同,且乙方所交納的履約保證金不予退還并追究乙方的違約責任。

11、乙方無論是提前還是按時退租的,都應向甲方提交退租清單,列明退租時承租物業的狀況及需要交接清點驗收物品的數量,甲方代表驗收清點無誤后簽字確認方視為乙方履行完畢交還租賃標的物的義務。

12、乙方應當足額支付其雇請的雇員或勞動者的工資,因乙方欠薪導致甲方損失的,甲方有權扣除乙方的履約保證金作為對甲方的賠償,不足部分可以向乙方追償。

第七條  免責條款

 發生屬于現行法律認可范圍內的戰爭、自然災害及國家法律、法規的變化等不可抗力,或甲方上級部門指令等情形致使合同不能繼續履行的,雙方互不承擔違約責任。任何一方都應及時將免責事由書面通知對方并提供相關證據。合同終止履行后,甲方向乙方一次性無息退還履約保證金,甲方按照乙方實際使用時間收取租金及相關費用,乙方投入的固定裝修不予補償。

第八條  其它約定事項

1、本合同寫明的聯系人、地址、電話等信息為雙方正式聯系方式,關于合同履行中需要傳遞的信息均按照以上確定方式聯絡,如發生變動,變動方應及時書面告知對方;否則造成信息不暢所產生的損失由過錯方承擔。

2、雙方在本合同執行過程中如發生爭議,應本著友好合作的原則協商解決;如協商不能解決時,雙方同意通過租賃房產所在地人民法院訴訟解決。

3、本合同未盡事宜,由甲乙雙方另行協商簽訂協議,并作為本合同的補充協議。

4、本合同一式拾份,甲方執正本壹份,副本陸份;乙方執正本壹份,副本貳份,具有同等法律效力。合同正本與副本具有同等法律效力,但當合同正本與副本不一致時,以合同正本為準。

5、本合同自甲乙雙方法定代表人或授權代表人簽字且蓋章之日起生效。

 

 

 

 

 

 

(以下無正文,僅為簽字蓋章部分)

甲方:                               乙方:

珠海大橫琴口岸建設開發有限公司

法定代表人                           法定代表人

(或授權代表人):                    (或授權代表人)

聯系地址:                           聯系地址:

珠海市橫琴新區景順路

(橫琴新區規劃展示廳旁)

郵政編碼:519000                     郵政編碼:

聯系電話:0756-6313918               聯系電話:

傳真電話:0756-6313900               傳真電話:

   年    日簽約于珠海                年  月  日簽約于珠海


橫琴口岸過渡期通關設施項目出境報關報檢樓三層寫字間競價邀請函

橫琴口岸過渡期通關設施項目出境報關報檢樓三層寫字間平面圖

橫琴口岸過渡期設施出境報關報檢樓布局圖